955 Gable Road, Lake Country
MLS® 10378087
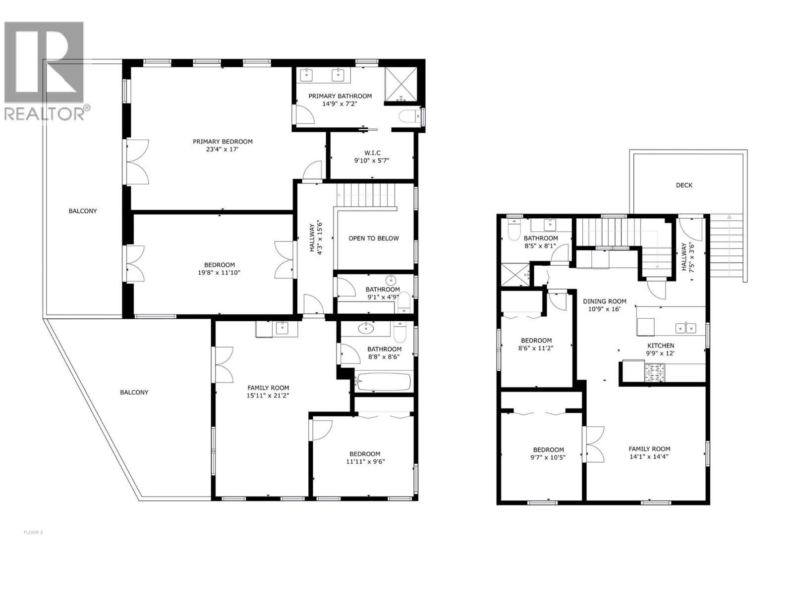
Discover the ULTIMATE LAKESIDE RETREAT in this meticulously reimagined SEMI-WATERFRONT HOME. Only steps away from the beach & boat launch, this property embodies the sun-drenched spirit of the Okanagan. With over $300K in PRECISION UPGRADES, this home has been modernized to a consistent, high-quality standard throughout. A gourmet kitchen w/custom cherry cabinetry & a sprawling island anchors the open-concept great room. The uninterrupted panoramic views flow through to the living room featuring a custom crafted mantle w/new gas fp w/vaulted ceiling & exposed beam. The upper level provides a private sanctuary, headlined by the primary bdrm featuring an expansive walk-in closet & a spa-inspired ensuite w/an elegant glass shower & heated floors. A generous 2nd bdrm, powder room, a 3rd bdrm, 4 piece bathroom PLUS family room w/coffee bar & access to a deck w/lake view, offers an additional refined space for family & friends. Beyond the primary residence, the property offers dual high-end guest or income opportunities. A LEGAL two-bdrm suite sits privately above the oversized garage, complemented by an additional one-bdrm suite, both registered & licensed w/the District for short term rentals, w/o sacrificing privacy. An exquisite outdoor haven incl. a custom kitchen & fireside lounge – a tranquil space to take in the beauty of the lake. Buoy, RV & boat parking, spacious driveway & an oversized, heightened double garage! This estate easily accommodates all Okanagan needs & more! (id:36863)
Property Details
- Full Address:
- 955 Gable Road, Lake Country, British Columbia
- Price:
- $ 2,495,000
- MLS Number:
- 10378087
- List Date:
- March 12th, 2026
- Lot Size:
- 0.27 ac
- Year Built:
- 1989
- Taxes:
- $ 9,755
Interior Features
- Bedrooms:
- 6
- Bathrooms:
- 7
- Appliances:
- Washer, Refrigerator, Range - Electric, Dishwasher, Dryer, Microwave, Oven - Built-In
- Flooring:
- Hardwood, Other, Ceramic Tile
- Air Conditioning:
- Central air conditioning
- Heating:
- Forced air
- Fireplaces:
- 2
- Fireplace Type:
- Gas, Unknown
Building Features
- Storeys:
- 2
- Sewer:
- Septic tank
- Water:
- Private Utility
- Roof:
- Asphalt shingle, Unknown
- Exterior:
- Stucco
- Garage:
- Attached Garage, Additional Parking
- Garage Spaces:
- 7
- Ownership Type:
- Freehold
- Taxes:
- $ 9,755
Floors
- Finished Area:
- 4340 sq.ft.
Land
- View:
- Lake view, Mountain view, Valley view, View of water, View (panoramic)
- Lot Size:
- 0.27 ac
Neighbourhood Features
- Amenities Nearby:
- Family Oriented


